Cocinas abiertas al salón: El corazón del hogar moderno y funcional

Cocinas abiertas al salón: El corazón del hogar moderno y funcional

La arquitectura residencial ha experimentado una evolución fascinante en las últimas décadas. Hemos pasado de entender la vivienda como una suma de estancias estancas y segregadas a concebirla como un ecosistema fluido. En este cambio de paradigma, las cocinas abiertas al salón se han posicionado como la reforma más demandada y la solución arquitectónica por excelencia para la vivienda contemporánea.

Ya no se trata simplemente de tirar un tabique; se trata de redefinir cómo vivimos, cómo interactuamos con nuestra familia y cómo la luz baña nuestros espacios. En QART Studio, entendemos que abrir la cocina es mucho más que una tendencia estética: es una estrategia de diseño para ganar amplitud, luminosidad y calidad de vida.

A lo largo de este artículo, exploraremos las claves para diseñar cocinas abiertas al salón con éxito, analizando cómo hemos aplicado estos principios en nuestros proyectos de reforma integral y obra nueva.

La evolución del espacio: De zona de servicio a centro neurálgico

Tradicionalmente, las cocinas eran espacios residuales, ocultos y destinados únicamente al trabajo doméstico. Sin embargo, el estilo de vida actual ha convertido el acto de cocinar en un evento social. Las cocinas abiertas al salón permiten que el anfitrión no quede aislado, fomentando la convivencia y permitiendo supervisar a los niños o charlar con los invitados mientras se preparan los alimentos.

Pero más allá de lo social, existe un argumento arquitectónico de peso: la luz y la perspectiva. Al eliminar barreras visuales, permitimos que la luz natural viaje más profundamente en la vivienda, transformando espacios oscuros en ambientes vibrantes.

El reto de la estructura: El caso del Apartamento Diagonal

El reto de la estructura: El caso del Apartamento Diagonal

Uno de los mayores desafíos al plantear cocinas abiertas al salón en edificios históricos o antiguos es la estructura. A menudo, los muros que queremos eliminar son de carga o contienen instalaciones comunitarias.

En nuestro proyecto Apartamento Diagonal, situado en pleno corazón del Eixample de Barcelona, nos enfrentamos precisamente a este reto. El objetivo era crear una zona de día abierta frente a la Avenida Diagonal. Para lograr integrar la cocina con el salón, realizamos un estudio exhaustivo de la estructura, lo que nos permitió colocar apeos y nuevas vigas. Esta intervención técnica fue crucial para soportar aberturas más amplias y altas, creando una estancia moderna y señorial que desafía la arquitectura compartimentada original del edificio. El resultado es una de las cocinas abiertas al salón más espectaculares que hemos realizado, donde la luz inunda cada rincón.

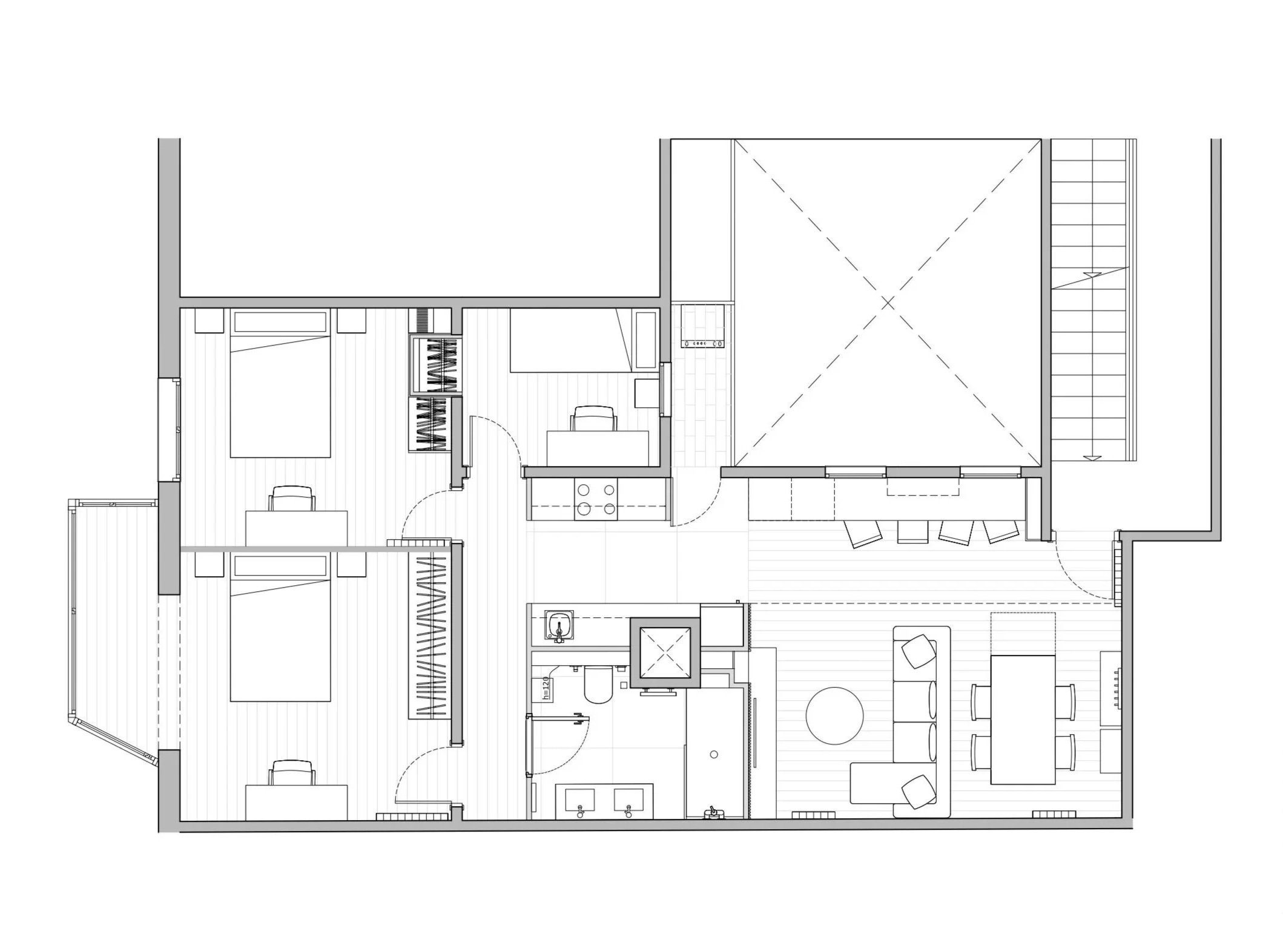
Tipologías de distribución para cocinas abiertas

No todas las cocinas abiertas al salón son iguales. La distribución dependerá de la planta de la vivienda, las necesidades del cliente y la circulación deseada. A continuación, presentamos las configuraciones más efectivas:

  1. Cocina con Isla Central: Ideal para espacios amplios. La isla actúa como elemento escultórico y separador visual, sin bloquear la luz.

  2. Cocina con Península: Perfecta para espacios rectangulares donde una isla no cabe. Sirve de barra de desayuno y transición.

  3. Cocina en L o Lineal: Se integra en una de las paredes del salón, mimetizándose con el mobiliario como si fuera una librería o un aparador.

Integración total: El proyecto Casa Tossa

Integración total: El proyecto Casa Tossa

Cuando disponemos de una ubicación privilegiada, las cocinas abiertas al salón deben ir un paso más allá y abrirse también al exterior. Este es el caso de Casa Tossa.

En este proyecto de nueva vivienda, la intervención principal consistió en generar un nuevo espacio de cocina-comedor conectado directamente no solo con el salón, sino con un porche y una piscina. Aquí, la cocina actúa como rótula entre el interior y el paisaje marítimo. Al diseñar cocinas abiertas al salón con esta filosofía, conseguimos que quien esté cocinando disfrute de las mismas vistas al mar que quien descansa en el sofá o en la terraza.

Transformación de viviendas antiguas: Ganar luz y espacio

Muchos de nuestros clientes acuden a QART Studio con pisos de los años 30, 60 o 70, caracterizados por pasillos largos, muchas habitaciones pequeñas y cocinas oscuras que dan a patios interiores. La solución magistral para estos inmuebles es casi siempre apostar por cocinas abiertas al salón.

Del compartimento a la libertad: Casa Mar y Apartamento Madrazo

Del compartimento a la libertad: Casa Mar

En el proyecto Casa Mar, transformamos una vivienda de los años 60, muy compartimentada y con problemas de humedad, en una casa de estilo mediterráneo moderno. Al eliminar los tabiques innecesarios y proyectar cocinas abiertas al salón, logramos erradicar la sensación de encierro y conectar el interior con el jardín.

De manera similar, en el Apartamento Madrazo, reformamos un piso de los años 30 para optimizar al máximo los espacios. En viviendas urbanas donde los metros cuadrados son oro, unir cocina y sala de estar elimina zonas de paso inútiles (como el recibidor o el pasillo de la cocina), regalando esos metros a las zonas de vida.

Claves de diseño para una armonía visual

Para que las cocinas abiertas al salón funcionen estéticamente, debe existir coherencia. No puede parecer que hemos colocado "una cocina" dentro de "un salón" de forma forzada; ambos espacios deben hablar el mismo lenguaje arquitectónico.

Materialidad y Suelos

Materialidad y Suelos

Una de las decisiones más importantes es el pavimento. ¿Debemos cambiar el suelo en la zona de la cocina o mantener el mismo en toda la estancia?

Estrategia Ventajas Ideal para...
Continuidad Amplía visualmente el espacio. Crea un efecto "infinito". Suelos de madera natural, porcelánicos imitación madera o microcemento.
Zonificación Delimita visualmente el área de trabajo. Protege la zona de aguas/grasas. Combinación de baldosa hidráulica en cocina y parquet en salón.

En el Apartamento Calabria, trabajamos con una distribución longitudinal. Para evitar el efecto "tubo", las cocinas abiertas al salón juegan un papel fundamental al aprovechar la luz de la terraza y la ventilación cruzada de los patios interiores, unificando el espacio mediante una paleta de materiales sobria y elegante que fluye a lo largo de la vivienda.

El mobiliario como arquitectura

En cocinas abiertas al salón, los electrodomésticos deben pasar desapercibidos. Recomendamos siempre electrodomésticos panelados (integrados con las puertas del mueble) para neveras y lavavajillas. La campana extractora puede empotrarse en el techo o en la propia placa de inducción para eliminar ruido visual.

El objetivo es que los muebles de cocina parezcan mobiliario de salón. El uso de maderas nobles, lacados mate y encimeras de piedra natural ayuda a sofisticar el conjunto.

Ventilación y Acústica: Miedos comunes

Ventilación y Acústica: Miedos comunes

Es habitual que los propietarios teman dos cosas al plantear cocinas abiertas al salón: los olores y el ruido.

  1. Extracción potente y silenciosa: Es innegociable invertir en una campana de alta gama con gran capacidad de absorción y bajos decibelios.

  2. Ventilación natural: Siempre que sea posible, buscamos favorecer la ventilación cruzada. En proyectos como Apartamento Mataró, donde disponemos de terrazas y una ubicación frente al mar, el diseño de cocinas abiertas al salón permite que la brisa marina renueve el aire de toda la zona de día en cuestión de minutos.

Conexión con la naturaleza y el entorno

Conexión con la naturaleza y el entorno

Las cocinas abiertas al salón no solo conectan espacios interiores, sino que son el vehículo perfecto para traer el exterior hacia adentro.

En Casa Prats, el sueño de la familia era reunirse rodeados por los Pirineos. El diseño se centró en una planta orientada al sur. Aquí, la cocina abierta no es solo un lugar para cocinar, sino un mirador hacia la Sierra del Cadí. Al eliminar barreras, la naturaleza entra en la casa y forma parte de la decoración.

Incluso en proyectos más urbanos o contenidos, como Casa Patio, buscamos esa conexión. A pesar de su carácter introvertido, la vivienda ofrece espacios de luz. Una cocina abierta en este contexto maximiza la sensación de amplitud en una planta que, de otro modo, podría parecer pequeña.

Estilos para tu cocina abierta

En QART Studio adaptamos el estilo a la esencia del edificio y del cliente, pero siempre manteniendo la funcionalidad de las cocinas abiertas al salón.

  • Mediterráneo Moderno: Tonos claros, maderas naturales y mucha luz, como vimos en Casa Mar.

  • Industrial Chic: Estructuras vistas y tonos más oscuros, ideal para lofts o reformas urbanas.

  • Minimalismo Cálido: Líneas puras pero materiales acogedores, perfecto para proyectos como Apartamento Benítez, donde reorganizamos la distribución para estudiantes, buscando funcionalidad y luz.

Iluminación: La clave del ambiente

Iluminación: La clave del ambiente

En las cocinas abiertas al salón, la iluminación debe ser versátil. Necesitamos luz técnica y potente sobre la encimera para trabajar con seguridad, y luz cálida y ambiental para cuando la cocina no está en uso, integrándose con la atmósfera relajada del salón.

Las tiras LED bajo los muebles altos, las lámparas colgantes sobre la isla y los focos empotrados regulables son herramientas esenciales que utilizamos en todos nuestros proyectos, desde el Centro Estética (donde la iluminación crea atmósferas acogedoras) hasta nuestras viviendas residenciales.

Una inversión en calidad de vida

Decidirse por reformar la vivienda y apostar por cocinas abiertas al salón es una decisión que revaloriza el inmueble y transforma la dinámica familiar. Ya sea para disfrutar de las vistas al mar como en Casa Tossa, para optimizar un piso urbano como en Apartamento Diagonal, o para conectar con la montaña como en Casa Prats, la apertura es sinónimo de modernidad.

En QART Studio, analizamos cada espacio, cada estructura y cada necesidad para diseñar la cocina que no solo se abre a tu salón, sino que se abre a tu forma de vivir. Si estás pensando en una reforma integral o una obra nueva, contáctanos y diseñemos juntos el corazón de tu hogar.

Preguntas frecuentes (FAQs)

  • Absolutamente. Unir la cocina con la sala de estar es una excelente idea para ganar amplitud visual, mejorar la iluminación natural y fomentar la interacción social entre los habitantes de la casa. Además, en viviendas pequeñas, es la mejor solución para eliminar zonas muertas y aprovechar cada metro cuadrado. Proyectos como el Apartamento Madrazo demuestran cómo esta solución optimiza el confort y la funcionalidad.

  • La iluminación debe planificarse por zonas (zoning). Recomendamos una luz general neutra (4000K) para la zona de trabajo y cocción, y una luz más cálida (2700K-3000K) para la zona de comedor o barra. Es fundamental que las luminarias de la cocina tengan un diseño coherente con las del salón. El uso de dimmers (reguladores de intensidad) es vital para integrar el ambiente de la cocina en el relax del salón cuando no se está cocinando.

  • A este concepto se le conoce comúnmente como "cocina americana", "open concept" (concepto abierto) o "cocina-comedor". En el ámbito del diseño arquitectónico, a menudo nos referimos a ellas como "zonas de día integradas" o "espacios diáfanos", ya que la cocina deja de ser una habitación para convertirse en parte del espacio principal de convivencia.

  • No existe un tamaño único, pero para que una cocina sea funcional, debe permitir el "triángulo de trabajo" (zona de cocción, lavado y almacenaje) de forma cómoda. En cocinas abiertas al salón, si incluimos una isla, esta debería tener al menos 90 cm de espacio libre alrededor para circular. Para una cocina completa y cómoda integrada en el salón, solemos recomendar un mínimo de 10 a 15 metros cuadrados dedicados al área de cocina dentro del espacio total.

  • Es una regla de proporción de color utilizada en diseño de interiores para garantizar el equilibrio cromático, muy útil en cocinas abiertas al salón para integrarlas con la decoración existente.

    • 60% Color Dominante: Suele ser un tono neutro (blanco, beige, gris suave) aplicado en paredes y armarios principales. Aporta luminosidad y amplitud.

    • 30% Color Secundario: Aporta contraste y profundidad. Se usa en la isla, el suelo o muebles auxiliares (por ejemplo, madera o un tono gris más oscuro).

    10% Color de Acento: El toque final. Se aplica en detalles pequeños como tiradores, grifería, lámparas o decoración (puede ser negro, dorado o un color vivo).

Anterior
Anterior

Casas unifamiliares modernas: El equilibrio perfecto entre diseño, luz y naturaleza

Siguiente
Siguiente

Comunicados de obra y gestión: la importancia de elegir un estudio de arquitectura en Barcelona