Apartamento Calabria

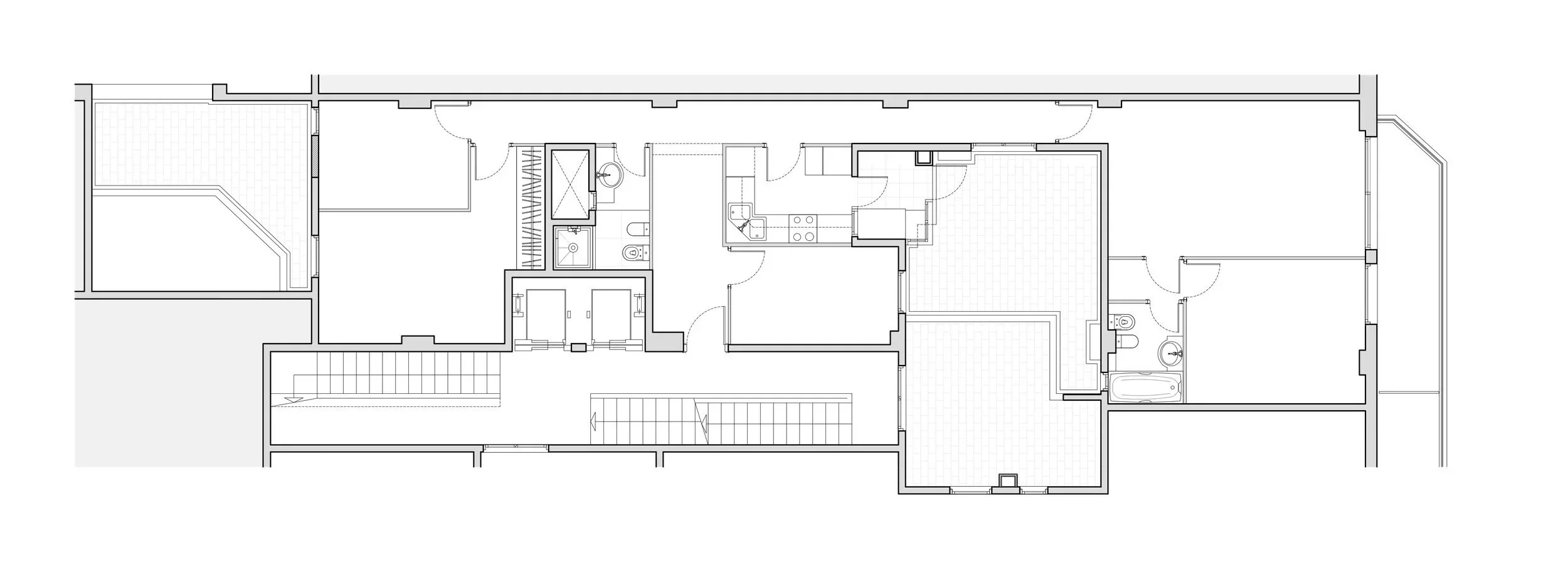
El proyecto del Apartamento Calàbria parte de una vivienda con una distribución longitudinal característica, organizada a ambos lados del acceso principal. La presencia de dos patios interiores y una terraza permitió aprovechar generosamente los espacios exteriores, introduciendo luz natural y ventilación cruzada en distintos puntos del piso.

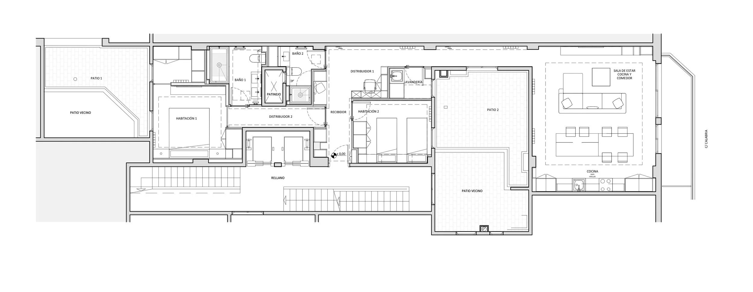
Atendiendo a las necesidades del cliente, se replanteó la distribución original: no era necesario mantener cuatro dormitorios, por lo que se configuró una suite principal y un dormitorio secundario.

Se conservaron los dos baños existentes, ambos reorganizados en torno al patinejo para asegurar una ventilación adecuada. Además, se incorporó un rincón de estudio y una lavandería, completando un programa funcional y contemporáneo.

En la zona que recibe mayor luminosidad se ubicaron la sala de estar y la cocina, concebidas como un espacio únicoque favorece la amplitud visual y la convivencia diaria. Este gesto convierte el corazón del apartamento en un ambiente cálido y luminoso, optimizando la relación entre interior y exterior.

Planta - Existente

Planta - Propuesta


Anterior
Anterior

Rehabilitación Casa Mar

Siguiente
Siguiente

Centro Estética